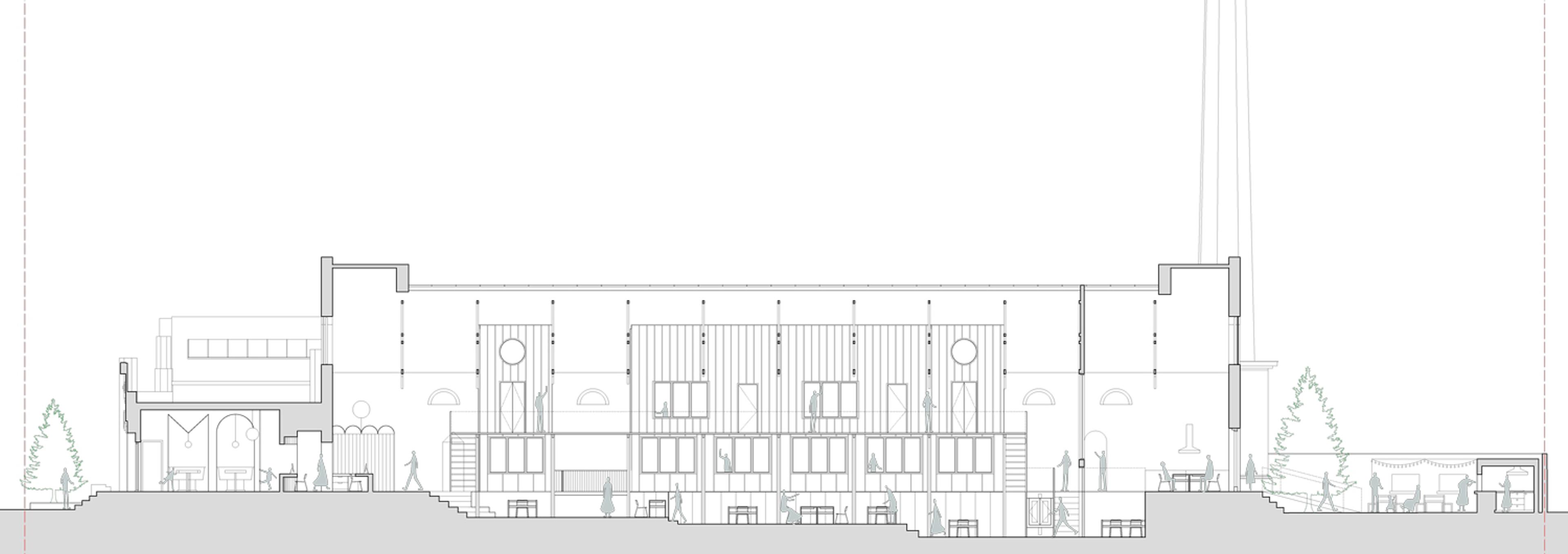
Erdington Baths Hub







Recently gaining planning approval, we have worked closely with our client Witton Lodge Community Association, to design and lead the refurbishment of a derelict victorian baths Erdington, into a new creative hub, creating new jobs with business support linking to local needs, with ancillary creche and eatery facilities in this mixed use proposal.
The Erdington Enterprise and Entrepreneur (E3) Hub is planned as a new facility serving micro-businesses, growing SMEs and social enterprises, with a focus on the creative, digital and environmental sectors and helping residents to realise their business ideas – in the North Birmingham area.
There are also enhanced environmentally sustainable and socially sustainable elements to the project development to date, such as :
– Installation of renewable energy generation.
– Increase to the fabric specification and use of natural materials, delivering a reduction of embodied carbon emissions in the construction.
– Enhanced support advice and information to businesses in energy management, delivered through seminars, group training and tailored individual support.



